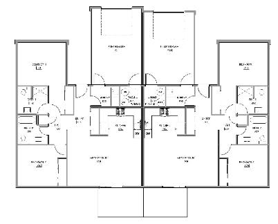
2 Bedroom / 2 Bath
Floor Plan